耐震改修セミナー
木造住宅耐震改修研究所(大楠安紀二級建築士事務所)では、耐震改修セミナーを開催しています。
以下セミナーの概要になります
─────────────
富山県に地震は来ない? 富山県における巨大地震の可能性
砺波平野断層帯・呉羽山断層帯
(砺波平野断層帯東部) 長期評価で予想した地震規模
(マグニチュード) 7.0程度 我が国の主な活断層における相対的評価
S*ランク地震発生確率 30年以内 0.04%~6%
【過去の大地震における 30 年以内の地震発生確率】
■阪神・淡路大震災(六甲・淡路島断層帯の一部).. 0.02〜8%
■熊本地震(布田川断層帯(布田川区間)) ...... ほぼ 0~0.9%
富山県の断層帯と地震発生規模予想
富山県地震被害想定 (富山県防災・危機管理課 地震被害想定調査より)
| 呉羽山断層帯 | 砺波平野断層帯西部 | 森本・富樫 断層帯 | 邑知潟断層帯 | ||
|---|---|---|---|---|---|
| 物的被害 | 建物全壊(棟) | 90,424 | 14,312 | 3,545 | 89,066 |
| 建物半壊(棟) | 273,752 | 42,842 | 21,156 | 80,590 | |
| 人的被害 | 死者(人) | 4,274 | 431 | 65 | 3,557 |
| 負傷者(人) | 20,958 | 5,795 | 2,104 | 19,590 |
邑知潟断層帯砺波市被害想定建物全半壊15,100戸
死者1,270人(12/10富山新聞)
・・・・・
富山県の住宅の特徴
住宅の床面積が大きい
住宅の壁が少なく、バランスが悪い
金属外壁の家が多い
富山県・各市町村耐震化への取組み
耐震診断に対する支援
約4千円の自己負担(県が約9割負担)
耐震改修に対する支援
改修補助金 100万円(国、県、市町村)
減税(所得税、固定資産税、ローン減税)
耐震診断・改修補助対象住宅
木造の一戸建で、階数が2以下のもの
昭和56年5月31日以前に建てられたもの
在来軸組工法によるもの
(柱、梁、桁など、木製の軸組で家の骨組をつくる工法)
違法建築でないもの
耐震診断の流れ
・お申し込み
(1)富山県建築士事務所協会へ電話申し込み(Tel.076-442-1135)
(2)富山県耐震診断等実施設計事務所へ申し込み
・現地調査にあたっての確認事項
委託者氏名、診断家屋所在地、家屋の所有者の確認
調査日時、負担金のご用意、認印の準備
建築図面の有無
家の中の各部屋への入室と写真撮影の了解
車が駐車できる場所の確認
解析・耐震診断書
・解析
一般財団法人日本建築防災協会が作成した耐震診断の内容に基づき、
耐震解析プログラムにより解析します。解析は無積雪と積雪時(1.0m)の2通り。
・耐震診断書
木造住宅耐震診断業務委託受託書、中表紙
総合評価(建物概要、地盤・地形・基礎形式、上部構造評点、総合評価)以下詳細内容は無積雪と積雪時(1.0m)の2通り作成・上部構造評点(保有耐力/必要耐力)・壁の耐力明細表・偏心率計算表・劣化度による低減係数・壁材質表示平面図平面図、補強アドバイス、総合診断書、写真
耐震診断書提出及び内容説明 耐震改修設計、概算改修費用算出
・現地調査後、 耐震診断書完成までに約2週間程度の期間が必要
・当研究所では耐震診断書の説明及び耐震解析プログラムを使用して診断家屋の3Gシミュレーションによる地震発生時の状況を提示
・当研究所専用オプション
耐震診断書に基づく概算耐震改修設計及び概算改修費用算出
費用33,000円(税込み)
・・・・・
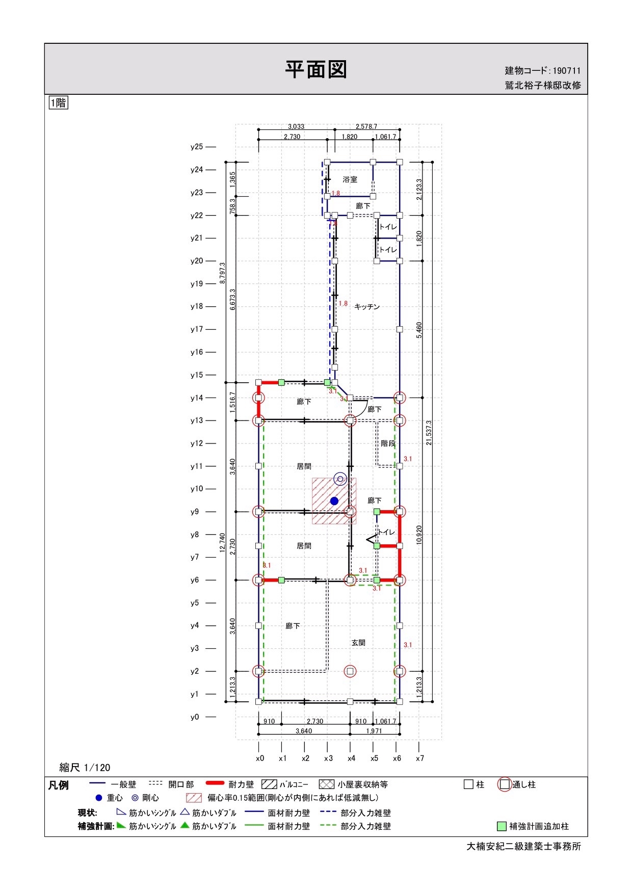
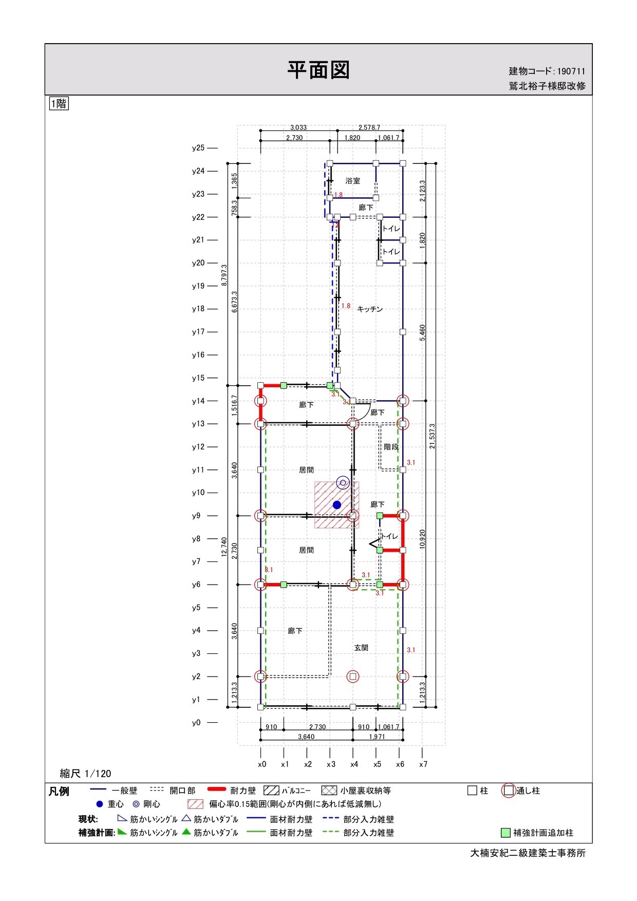
改修例:「ささえるさんの家となみ」耐震診断の内容
所在地:砺波市新富町
築年度:昭和2年 (築92年)
延べ床面積:156㎡(47坪)
改修前上部評価点:0.05
(国の定めた震度6強で倒壊しない建物耐力を1.0とする)
間口方向に全く壁がなく、倒壊する恐れが非常に高い
「ささえるさんの家となみ」改修前平面図
耐震改修のポイント
柱と土台、梁を金物で連結
筋交いの設置
耐力合板貼り
基礎の増設、補強、補修
重心・剛心のバランス
「ささえるさんの家となみ」耐震改修の内容
・1階間口方向に5ヶ所耐力壁を設置
・基礎、土台、柱、梁の設置
・1階両隣との境の壁に耐力合板を貼り付け
・2階押入部に耐力壁を設置
耐力壁工事:柱頭柱脚金物取付、筋交い、耐力合板貼り
「ささえるさんの家となみ」改修平面図
改修前の状況
基礎の増し打ち
土台・梁の増設
金物取付
筋交い取付
耐力合板貼り
仲間で漆喰塗り
改修後
「参考例」外部からの耐震改修
耐震改修工事時の問題点と対処方法
間口方向に壁がなく、地震耐力に乏しい
⇒5ヶ所に新規耐力壁を設置し、地震に耐えられるようにした。
設置した壁に、キッチン、トイレ等を設置。
規定の土台、梁、柱が入っていない。
⇒土台、梁の追加設置。柱の無いところは耐力壁の位置変更。
4枚建てに耐力壁を設置したため、戸の開けたときの広さが取れない。
⇒敷居、鴨居に新規溝を追加し、3本引きへ変更。
「ささえるさんの家となみ」工事期間
11月5日〜12月13日
工事契約前に砺波市に改修補助金の申請承認が必要(約3ヶ月)
耐震工事期間は11月5日〜11月30日 その後土間コンクリート増し打ち
これまでの工事は大体1ヶ月弱の期間 住まいながらの工事を実施
「ささえるさんの家となみ」工事費用と資金
| 工事費用 | |
|---|---|
| 耐震改修工事 |
143万円 |
| 建具及び床改修工事 | 65万円 |
| 外壁及び土間工事 | 33万円 |
| 給排水設備工事 | 111万円 |
| 電気工事 | 90万円 |
| 手摺り工事 | 9万円 |
| 耐震設計・工事監理 | 36万円 |
| その他(内装材料,備品) | 50万円 |
| 合計 | 537万円 |
・・・・・
|
資金 |
|
|---|---|
| 耐震改修補助金 | 100万円 |
| 手摺り工事補助金 | 8万円 |
| 富山県信用組合からの借入れ | 370万円 |
| クラウドファンディング | 76万円 |
| 合計 | 554万円 |
上記借入金の内70万円に対し砺波市水洗便所等改造資金利子補給金10万円(3年間)有り
これまでの改修5物件平均実績
| 築年度 | 大正12年から昭和52年 |
|---|---|
| 延床面積 | 177㎡(54坪) |
| 改修前上部評価点 | 0.05〜0.35 |
| 改修後上部評価点 | 0.70〜1.04 |
| 改修総費用平均 | 437万円 |
| 耐震部分改修費用平均 | 157万円 |
| 補助金、減税額 | 105万円 |